Дома под ключ в Брянске
Отзывы из Яндекс Карт
4.9
81 отзывов
Дополнительные услуги 88%
2 154 оценок
Комплектации 89%
1 535 оценок
Планировки 90%
2 484 оценок
Проекты 93%
2 231 оценок
С
Ролан Безруков05/29/2025 г.
После долгого сравнения различных предложений на рынке остановил свой выбор на "Брус дома" и совершенно прав, ведь только здесь мне предложили реально качественный проект каркасного дома по адекватной цене без ущерба для материалов и сроков. Строительство заняло чуть больше месяца, и теперь у меня есть современный, энергоэффективный и очень теплый дом, в котором все продумано до мелочей. Спасибо за отличную работу.
Отзывы из Google Карт
4.8
49 отзывов
Дополнительные услуги 88%
2 154 оценок
Комплектации 89%
1 535 оценок
Планировки 90%
2 484 оценок
Проекты 93%
2 231 оценок
С
Услада Владимирова01/05/2026 г.
Заказывала только коробку под усадку, чтобы самой потом отделывать. Никаких навязываний полного цикла не было, дали подробные рекомендации, что и когда делать дальше. Сотрудничество комфортное.
С
Венера М.02/03/2025 г.
Дом построен с душой: видно, что каждый специалист компании относится к своей работе с большим вниманием и ответственностью, а не просто выполняет монотонные действия по инструкции.
Отзывы из 2гис
4.9
39 отзывов
Дополнительные услуги 88%
2 154 оценок
Комплектации 89%
1 535 оценок
Планировки 90%
2 484 оценок
Проекты 93%
2 231 оценок
С
Арно Березин05/01/2026 г.
Прошлым летом заказал баню 4х6 с беседкой. Сделали быстро, за три недели, но материал привезли с пару кривых досок — заметил при приёмке, заменили на следующий день. Баню топим каждую субботу, пар отличный.
С
Клавдия С.04/14/2026 г.
На этапе проектирования мы семь раз меняли расположение санузла. Дизайнер Ольга лишь вздыхала и каждый раз перерисовывала план, за что ей низкий поклон. В итоге место нашлось идеальное.
С
Кир03/31/2026 г.
Приехал принимать дом 10х11 с цоколем, полез проверять углы уровнем. Всё в допуске, только одна стена ушла на сантиметр. Строители сказали, что это из-за бруса естественная усадка, через год выровняется. Пока верю на слово.
С
Константин Д.02/13/2026 г.
Заказал двухэтажный дом 8х10 для постоянного проживания с панорамным остеклением. Строили почти четыре месяца, результат радует, но с кровлей пришлось повозиться — саморезы местами не дожали, сам подтянул.
С
Захар Николаев08/30/2025 г.
Выбрал компанию Брус дома для строительства бани из профилированного бруса и ни разу не усомнился в правильности своего выбора. С самого начала менеджер подробно проконсультировал по всем вопросам, а строительная бригада работала слаженно и оперативно. Результат превзошел ожидания — получилась очень уютная и добротная парная, в которой приятно проводить время с семьей и друзьями.


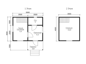
Проект №4 Дом с мансардой 5х4

брус камерной сушки
Создайте свой план для этого проекта
и отправьте его нам на расчет в один клик.
Под ключ (с отделкой) 5х4 Профилированный 140х140 мм 1160700 Заказать
Под ключ (с отделкой) 5х4 Профилированный 190х140 мм 1280700 Заказать
Под усадку (без отделки) 5х4 Cруб дома 140х140 мм 820700 Заказать
Под усадку (без отделки) 5х4 Cруб дома 190х140 мм 930700 Заказать


Комплектация

Площадь застройки: м2
Длина: 5 м
Ширина: 4 м
Общая площадь: 30.1 м2
Под ключ (с отделкой) Под усадку (без отделки)
Фундамент Свайно-винтовой или ж/б сваи (рассчитываются отдельно).
Гидроизоляция фундамента Рубероид в два слоя.
Основание (обвязка) Из обрезного бруса (100х150 мм. 150х150 мм. 150х200 мм. согласно выбранному сечению бруса). Обработка антисептиком.
Количество рядов основания 2 2
Цокольное перекрытие Обрезной брус камерной сушки 100х150/50х200 мм. с шагом 600 мм. Обработка антисептиком. Обрезной брус естественной влажности 100х150/50х200 мм. с шагом 600 мм. Обработка антисептиком.
Пол черновой Обрезная доска камерной сушки 20х100 мм. Обрезная доска естественной влажности 20х100 мм.
Внешние стены Профилированный брус камерной сушки, сечением 90х140/140х140/190х140 мм. по выбранной комплектации. Два вида профиля: 
1. С двух сторон, прямой со снятой фаской. 2. Снаружи под «блок- хаус», внутри прямой.
Высота сруба: Сруб одноэтажный- 18 венцов
Сруб с мансардой- 18 венцов
Сруб в 1,5 этажа- 18 венцов, далее каркас с внешней отделкой имитацией бруса.
Сруб в 2 этажа- 37 венцов
Профилированный брус естественной влажности, сечением 90х140/140х140/190х140 мм. по выбранной комплектации. Два вида профиля: 
1. С двух сторон, прямой со снятой фаской. 2. Снаружи под «блок- хаус», внутри прямой.
Высота сруба: Сруб одноэтажный- 18 венцов
Сруб с мансардой- 18 венцов
Сруб в 1,5 этажа- 18 венцов, далее каркас с внешней отделкой имитацией бруса.
Сруб в 2 этажа- 37 венцов
Межвенцовый утеплитель Джут (льноджутовое полотно). Джут (льноджутовое полотно).
Перегородки 1-го этажа Профилированный брус камерной сушки, сечением 90х140 мм. Профилированный брус естественной влажности, сечением 90х140 мм.
Перегородки 2-го этажа Каркасные: доска камерной сушки 40х100 мм, обшитые евровагонкой хвойных пород, камерной сушки, толщиной 12,5 мм. сорт «АВ» (дома с мансардой и в 1,5 этажа). Брусовые: профилированный брус камерной сушки, сечением 90х140 мм. (дома двухэтажные). Каркасные: доска естественной влажности 40х100 мм. (дома с мансардой и в 1,5 этажа). Брусовые: профилированный брус естественной влажности, сечением 90х140 мм. (дома двухэтажные).
Сборка сруба Берёзовый нагель. Берёзовый нагель.
Соединение углов сруба «Тёплый угол» (коренной шип). «Тёплый угол» (коренной шип).
Высота от пола до потолка Сруб одноэтажный: 2,4 м. (18 венцов) Сруб с мансардой: 1-ый этаж- 2,4 м. (18 венцов)
2-ой этаж (мансарда)- 2,3 м.
Сруб в полтора и два этажа:
1-ый этаж 2,4 м ±4 см. (18 венцов)
2-ой этаж 2,4 м ±4 см. каркасные аттиковые стены (боковые) высотой 1,5 м. в полутораэтажном доме
2,4 м ±4 см (поднят брусом на 18 венцов) в двухэтажном доме.
Сруб одноэтажный: 2,5 м. (18 венцов) Сруб с мансардой: 1-ый этаж- 2,5 м. (18 венцов)
2-ой этаж (мансарда)- 2,4 м.
Сруб в полтора и два этажа:
1-ый этаж 2,5 м ±4 см. (18 венцов)
2-ой этаж 2,5 м ±4 см. каркасные аттиковые стены (боковые) высотой 1,5 м. в полутораэтажном доме
2,5 м ±4 см (поднят брусом на 18 венцов) в двухэтажном доме.
Утепление (пол, потолок, мансарда) Минеральная вата Knauf 150 мм. Отсутствует.
Пароизоляция (пол, потолок, мансарда) Ондутис R70. Отсутствует.
Пол чистовой Шпунтованная доска камерной сушки толщиной 36 мм. сорт АВ. по рейке 20х40 мм. либо шпунтованная ДСП 16 мм. по разряженной обрешётке из обрезной доски камерной сушки 20х100 мм. Отсутствует.
Потолки Евровагонка камерной сушки толщиной 12,5 мм. сорт АВ. Отсутствует.
Окна Деревянные, двойного остекления. Отсутствуют.
Двери Входная- металлическая, утеплённая (Россия). Межкомнатные- филёнчатые. Отсутствуют.
Наличники на окна и двери Наличник деревянный, строганый, камерной сушки 70-90 мм. Отсутствует.
Шиповка оконных и дверных проёмов (ройки) Да. Отсутствует.
Лестница (при наличии второго этажа) Деревянная, одно или двухмаршевая. Перила- заводские резные, балясины- заводские точеные, устанавливаются стартовые точёные столбы. Ступени 40х200 мм. Тетива лестницы- 90х140 мм. Отсутствует.
Крыша Двускатная, ломаная или вальмовая в соответствии с проектом. Двускатная, ломаная или вальмовая в соответствии с проектом.
Стропильная система Выполнена из обрезной доски камерной сушки 40х150 мм. Шаг установки стропильных ног 600 мм. Выполнена из обрезной доски естественной влажности 40х150 мм. Шаг установки стропильных ног 600 мм.
Обрешётка Выполняется из обрезной доски камерной сушки толщиной 20-22 мм. Шаг крепления обрешетки 300 мм. Контробрешётка выполняется из бруска камерной сушки 40х50 мм. Крепится по стропильным ногам (вентиляционный зазор). Выполняется из обрезной доски естественной влажности толщиной 20-22 мм. Шаг крепления обрешетки 300 мм. Контробрешётка выполняется из бруска естественной влажности 40х50 мм. Крепится по стропильным ногам (вентиляционный зазор).
Подкровельная мембрана Ондутис А100 Ондутис А100
Кровельное покрытие (на выбор) Ондулин, Черепица Ондулин. Ондулин, Черепица Ондулин.
Фронтоны (при наличии) Каркас из обрезной доски камерной сушки 40х150 мм. Обшиваются вагонкой камерной сушки толщиной 16 мм. сорт АВ по контррейке 20х40 мм. (вентиляционный зазор). Влаго-ветрозащита Ондутис А100. Монтаж вентиляционных решёток. Каркас из обрезной доски естественной влажности 40х150 мм. Обшиваются вагонкой камерной сушки толщиной 16 мм. сорт АВ по контррейке 20х40 мм. (вентиляционный зазор). Влаго-ветрозащита Ондутис А100. Монтаж вентиляционных решёток.
Свесы крыши Ширина 400 мм. Подшиваются вагонкой камерной сушки, сорт АВ. Ширина 400 мм. Подшиваются вагонкой камерной сушки, сорт АВ.
Терраса/балкон (при наличии) Устанавливаются опорные столбы из строганного бруса камерной сушки 140х140 мм. с компенсационными болтами под усадку. Устанавливаются опорные столбы из строганного бруса естественной влажности 140х140 мм. с компенсационными болтами под усадку.
Отделка потолка террасы/балкона Евровагонка камерной сушки толщиной 12,5 мм. сорт АВ. Отсутствует.
Пол террасы/балкона Шпунтованная доска камерной сушки толщиной 36 мм. сорт АВ. Отсутствует.
Ограждение террасы/балкона Перила- строганая доска. Балясины- точеные, фигурные. Либо ограждение в скандинавском стиле. Устанавливаются ступени у входа. Отсутствует.
Допуск на геометрические параметры сруба Составляет +/- 50 мм по длине с каждой стороны. Составляет +/- 50 мм по длине с каждой стороны.
Допускается стыковка бруса, вагонки и половой доски По всему периметру стен дома (если ширина и длина дома более 6,0 метров). Вагонки и доски пола в каждой отдельной комнате. По всему периметру стен дома (если ширина и длина дома более 6,0 метров).
Допуски по брусу, доске +/- 5 мм. +/- 5 мм.
В стоимость включена Доставка комплекта материала в радиусе 500 км. от г. Пестова Новгородской области и сборка дома на вашем участке. Доставка комплекта материала в радиусе 500 км. от г. Пестова Новгородской области и сборка дома на вашем участке.
Гарантия 5 лет. 2 года.
Бытовка строительная 2,0х3,0 м. каркасно-щитовая. Стоимость 23000 руб. Остаётся на участке Заказчика. Стоимость 23000 руб. Остаётся на участке Заказчика.
Туалет 1,0х1,0 м. каркасно-щитовой. Стоимость 12000 руб. Остаётся на участке Заказчика. Стоимость 12000 руб. Остаётся на участке Заказчика.
Генератор Стоимость аренды на весь срок строительства 10000 руб. ГСМ за счёт Заказчика. Стоимость аренды на весь срок строительства 10000 руб. ГСМ за счёт Заказчика.

Сооружение деревянных домов производится в двух видах: под усадку, когда дом будет отстаиваться некоторое время и под ключ.

Зимой эксперты советуют строить дом из зимнего леса, в теплое время года - из сухого бруса.

Подходящими для дачи или сада являются домики на винтовых сваях, в нашем каталоге имеются одноэтажные и полуторатажные варианты домов.

Для ПМЖ (постоянного проживания), предлагаем очень теплые и надежные дома на плитных и ленточных фундаментах.

Имеется несколько вариантов размера профилированного бруса: 140х140 мм и 190х140 мм. Дома из вертикального бруса возводятся с применением бруса 140х190 мм.

Дополнительные услуги


Этот популярный проект дома с (5х4 м.) превосходно впишется в ландшафт любого дачного участка. В качестве несомненных преимуществ проекта 4 потребители выделяют:

  • надежность и прочность конструкции;
  • практичность и функциональность планировки;
  • долговечность и экологичность здания;
  • доступность и конкурентная привлекательность цены, предоставленной компанией «Дача из бруса».

Общая площадь полутораэтажного здания, укрытого двускатной крышей из ондулина (красного, коричневого или зеленого цвета – на выбор), составляет 30.1 кв.м.. К вполне демократичной цене стоит добавить несомненную экономию средств на фундаментных работах и строительных операциях, благодаря легкости и простоте возведения сооружения. А естественный аромат экологически чистой натуральной древесины станет дополнительным аргументом в выборе поставщика. Мы сделаем ваш отдых в Брянске еще более комфортным.


Заказать или задать вопрос



Заказать или задать вопрос

Заказать звонок